您的位置>> 首页>> 产品展示>> SDRL系列大流量双筒回油滤器
SDRL系列大流量双筒回油滤器

SDRL系列大流量双筒回油滤器


SDRL系列大流量双筒回油滤器

SDRL系列大流量双筒回油滤器 

简介:SDRLF双筒大流量回油过滤器是由两只单筒过滤器及二位六通换向阀组成,具有结构简单,使用方便,并带有旁通阀及滤芯污染堵塞发讯器,当滤芯堵塞是,用以保证系统安全运行的目的。
单筒过滤器在工作过程中滤芯堵塞到一定程度需清晰或更换时,要停止主机工作,这样不仅浪费时间更不能满足主机联系工作的需要,双筒过滤器有效地解决了单筒过滤器这方面的缺陷,在不停机的情况下可清洗耳恭听或更换滤芯以保证主机正常连续工作。
它的工作特点是当一只过滤器滤芯堵塞需更换时,不需要停止主机工作,只要打开压务平衡阀并转动换向阀,另一只过滤器即可参加工作,然后更换已堵塞的滤芯。
本过滤器主要应用与重型机械、矿山机械、冶金机械等液压系统。

型号说明

SDRL系列型号说明

技术参数

SDRL系列液压过滤器技术参数

注:*为过滤精度,若使用介质为水一乙二醇,带发讯器,则过滤器型号为SDRLF·BH-A2600×*P,滤芯型号为:SFBX·BH-1300×*。

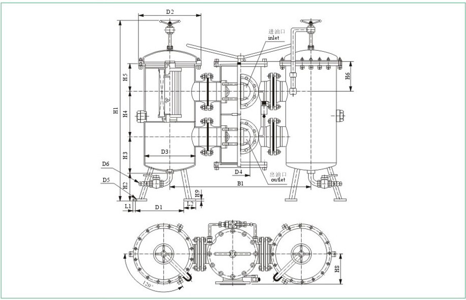
安装及外型尺寸

SDRL系列液压过滤器安装外型尺寸

外接法兰连接尺寸

SDRL系列液压过滤器外接法兰尺寸


上一篇:管夹系列   下一篇:DRLF系列大流量回油过滤器


<关闭>